37
$4,400 Rent
Listed 20 days ago
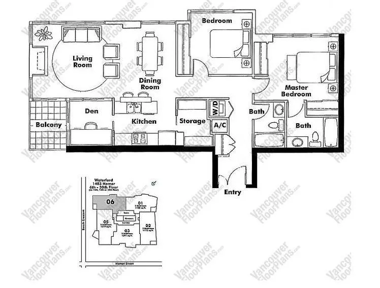
606 1483 Homer Street
· 2
· 2
· 1
· 1080
Key Facts
Key facts for 606 1483 Homer Street
Property Type
Condo
Parking
1 parking
MLS #
R3050657
Size
1080 sqft
Basement
-
Listed on
-
Lot size
-
Tax
-
Days on Market
-
Year Built
-
Maintenance Fee
-
Description
Enjoying the spacious open kitchen/dining/living areas, The den is perfect for an office, in-suite storage/pantry room, two bedrooms and two full bathrooms. The home exquisitely finished with Hardwood flooring in all living areas, carpets in both bedrooms, double edged granite to stainless steel app...liances. Floor to ceiling glass walls celebrate the natural environment. Features include 24 hour concierge, over-height ceilings, granite & corian countertops, Family size appliances, AC , custom crafted wood cabinets & quality finishing throughout. As a resident at Waterford, you get to enjoy membership at Club Viva, a resort-style facility that includes lap pool, theatre, spa, squash courts and much more. Minutes walking distance to Yaletown Roundhouse station.
Similar Properties (No results)
Courtesy of: Vancouver Luxury Realty